藤沢市亀井野1378-2の分譲住宅一覧|藤沢市・茅ケ崎市・平塚市周辺の不動産情報・住宅ローン相談はエムズ住宅販売

TEL:0120-295-554

10:00〜19:00/毎週火曜日・水曜日定休

TOPページ >
物件検索 >
分譲住宅特集一覧 >
藤沢市亀井野1378-2の分譲住宅特集一覧
2件中1〜2件を表示
  • 1
新築一戸建て
価格 5,899万円 
所在地 藤沢市亀井野1378-2
交通 小田急江ノ島線 六会日大前駅 徒歩13分
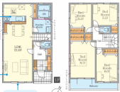
建物面積 108.70m2 土地面積 136.04m2

☆POINTO☆ 【学区】 ■亀井野小学校・・・約1200m ■湘南台中学校・・・約1100m

新築一戸建て
価格 5,899万円 
所在地 藤沢市亀井野1378-2
交通 小田急江ノ島線 六会日大前駅 徒歩13分
建物面積 108.47m2 土地面積 136.04m2

2件中1〜2件を表示
  • 1
お知らせ
ローン相談

住宅ローン審査通過実績

90%!
建築について
本当のあなたに
帰れる場所を
売却について
不動産の売却は
当社にお任せ下さい!
当社について
落ち着いたカフェ空間で
お家探しを
お手伝いします

エムズ住宅販売

〒251-0054
神奈川県藤沢市朝日町15番1号
TEL:0120-295-554
営業時間:10:00〜19:00
定休日:毎週火曜日・水曜日定休


お電話での
お問い合わせ

TEL:0120-295-554

10:00〜19:00/毎週火曜日・水曜日定休

LINEでお問い合わせ

エムズ住宅販売

©M’s zyutakuhannbai